UIL ALCÂNTARA

Concurso público: 3º prémio

Este projeto-piloto propõe um novo edifício municipal destinado a alojar pessoas em situação de sem abrigo no bairro de Alcântara, em Lisboa, procurando aliar praticidade, sustentabilidade e uma identidade arquitetónica clara.

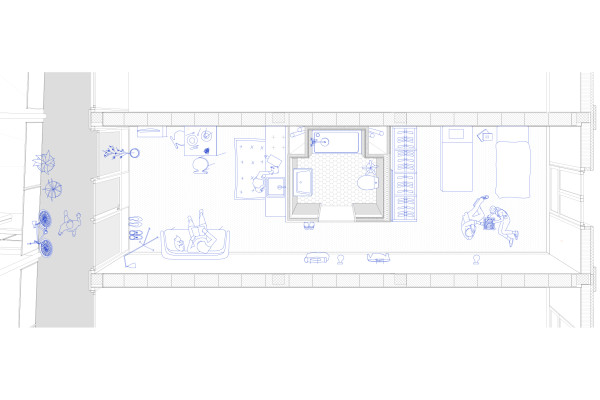
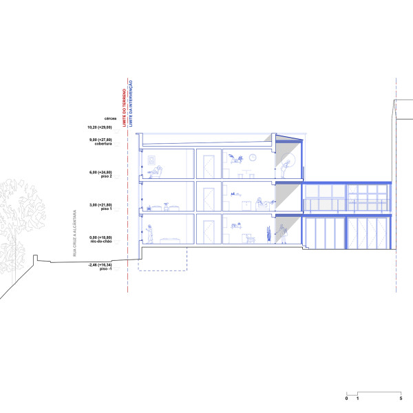
Organizado como um volume em “L” de três pisos, o edifício redefine um gaveto urbano expectante. A sua frente principal abre-se para o Vale de Alcântara, enquanto a entrada, situada numa rua mais tranquila, é marcada pela ampliação do espaço público e pela presença de equipamentos comunitários, como uma sala comum e uma lavandaria.

Os apartamentos distribuem-se em galeria, com dupla orientação — para a rua e para o logradouro interior. Cada fogo integra um módulo pré-fabricado com cozinha e instalação sanitária, assegurando eficiência, controlo de custos e escalabilidade da solução.
O projeto equilibra a presença urbana com a escala humana, oferecendo habitações dignas e espaços que incentivam a vida em comunidade.
Ano
2025
Localização
lisboa / portugal
Tipologia
residencial / habitação coletiva
Área
1200 (área construída) 773 (área do lote) m2
Cliente
público / Lisboa SRU