escola nuno Gonçalves

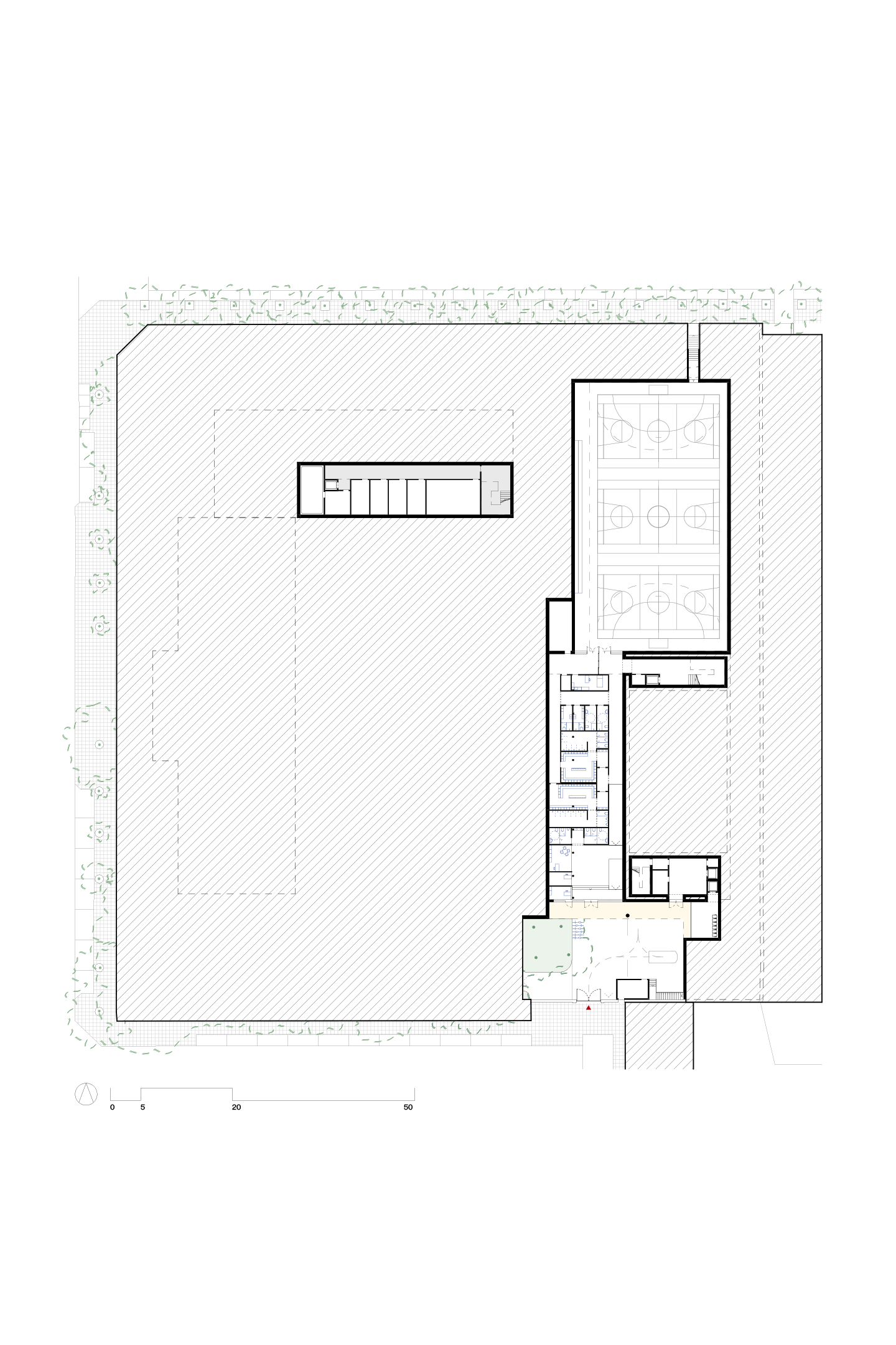
O conjunto escolar é composto por três edifícios dispostos em “U”, formando um pátio central aberto a sul — o verdadeiro coração da escola. Esta configuração, que define a identidade do conjunto, é preservada e valorizada no novo projeto.

A proposta mantém o princípio de implantação original, reforçando a acessibilidade total e a funcionalidade do espaço. A estratégia aposta na otimização das circulações, na valorização dos espaços de recreio e jogo, e na integração de duas ampliações que se articulam naturalmente com os Blocos preexistentes. Desta forma, a escola ganha novas áreas e melhores condições, num conjunto coerente.
Ano
2025
Localização
lisboa / portugal
Tipologia
edifício escolar / ampliação
Área
11000 (área construída) 11900 (área do lote) m2
Cliente
publico / lisboa sru
Arquitetura Paisagista
baum